01 02 03

必一运动bsport体育 - 油浸式变压器

主营干式变压器、油浸式变压器、电抗器、美式箱变、组合式变电站等城网电气产品设备

10kV级S(B)Z系列三相油浸式有载调压配电变压器

公司主导产品包括节能型干式变压器、油浸式变压器、智能组合箱式变电站、输变电设备及高低压配电柜等
如果有需求请拨打我们的服务热线

地址:山东省金乡县化雨工业园
联系电话(微信同号):15953487777  13953726991
联系人:孙经理


扫一扫添加微信  扫一扫添加微信

信息详情

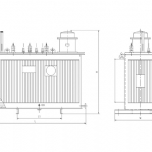
三相油浸式变压器51


10kV级S(B)Z系列三相油浸式有载调压配电变压器

10kV S(B)Z Series Three-phase Oil-immersed on-load voltage Distribution Transformer

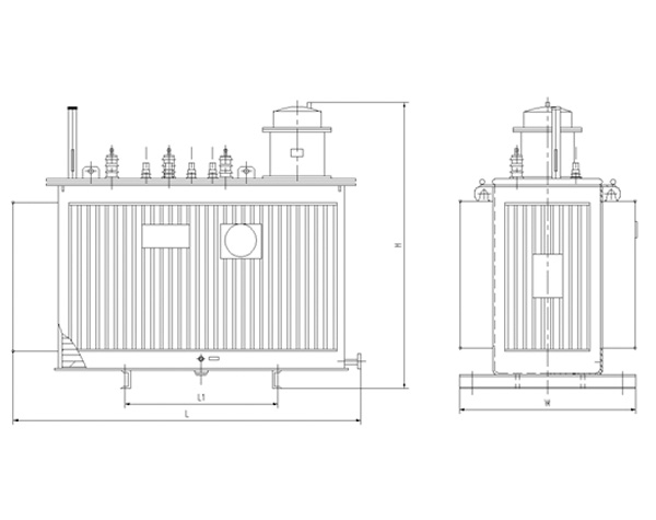
三相油浸式变压器4

三相油浸式变压器5

三相油浸式变压器52

三相油浸式变压器53


注:表中提供的外形尺寸及重量仅供参考,请以订货时提供的外形尺寸图为准。    


10kV级S(B)Z系列三相油浸式有载调压配电变压器 2024-4-28 本文被阅读 1457次
上一条:先进单位下一条:山东省民营科技企业

同类产品

联系金科

全国客服热线:400-6721-789

    ug环球会员注册   备案号:鲁ICP备19031904号-1号-1    地址:山东省金乡县化雨工业园    ug环球会员注册16075018517509092鲁公网安备 37082802000190号