
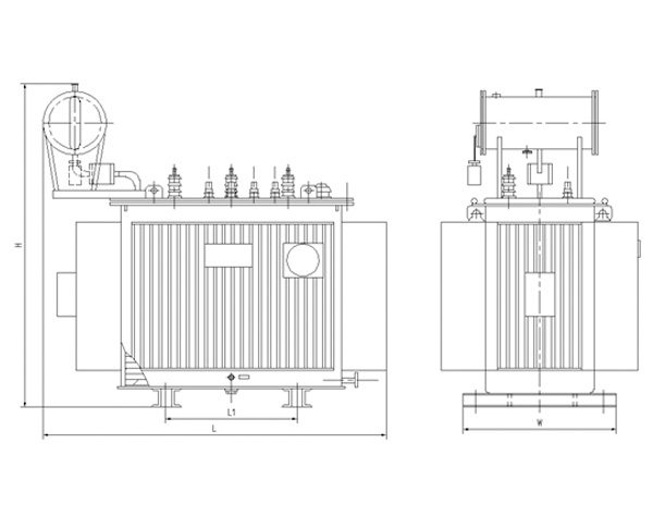
35kV级S(B)系列三相油浸式配电变压器
35kV S(B) Series Three-phase Oil-immersed Distribution Transformer




注:1、对于额定容量为500kVA及以下的变压器,表中斜线上方的负载损耗值适用于Dyn11或Yzn11联接组,斜线下方的负载损耗值适用于Yyn0联接组。
2、表中提供的外形尺寸及重量仅供参考,请以订货时提供的外形尺寸图为准。
35kV级S(B)系列三相油浸式配电变压器 2024-4-28 本文被阅读 1591次
| 上一条:20kV级S(B)系列三相油浸式配电变压器 | 下一条:山东省民营科技企业 |

全国客服热线:












